Start
Rekrutacja 2026/2027
Kontakt
Projekty
FERS 2021-2027 "Fachowcy ZSP nr 2 na rynku europejskim"
FERS 2021-2027 "Zawodowcy poszerzają horyzonty"
ERASMUS - Fryzjerzy podbijają Europę
Wirtualna strzelnica
Zamówienia publiczne
O szkole
Historia szkoły
Nasz patron
Strona główna
/
Dokumenty
/
Dokumenty szkolne
/
Plan ewakuacji szkoły
Plan ewakuacji szkoły
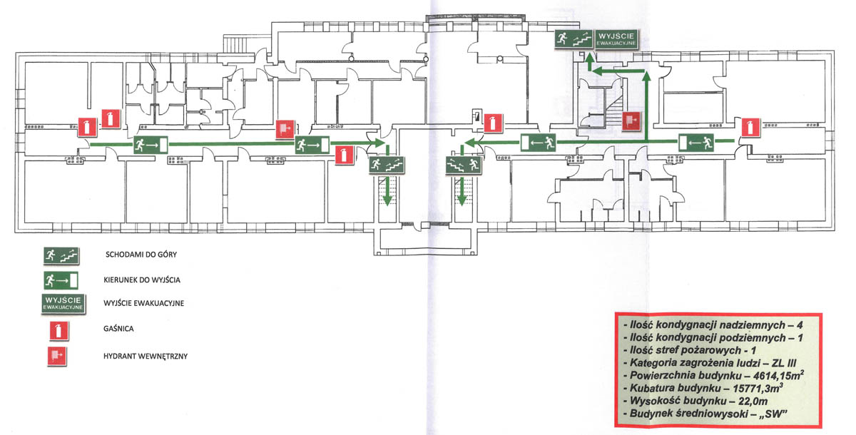
Plan ewakuacji szkoły - I PIĘTRO
plan_ewakuacji_1_pietro.jpg
Pobierz
Szczegóły
Plan ewakuacji szkoły - II PIĘTRO
plan_ewakuacji_2_pietro.jpg
Pobierz
Szczegóły
Plan ewakuacji szkoły - III PIĘTRO
plan_ewakuacji_3_pietro.jpg
Pobierz
Szczegóły
Plan ewakuacji szkoły - PARTER
plan_ewakuacji_parter.jpg
Pobierz
Szczegóły
Plan ewakuacji szkoły - PIWNICA
plan_ewakuacji_piwnica.jpg
Pobierz
Szczegóły
Plan ewakuacji szkoły - SALA GIMNASTYCZNA PARTER
plan_ewakuacji_sala_parter.jpg
Pobierz
Szczegóły
Plan ewakuacji szkoły - SALA GIMNASTYCZNA PIĘTRO
plan_ewakuacji_sala_pietro.jpg
Pobierz
Szczegóły
Ordering
Nazwy plików: A - Z
Nazwy plików: Z - A
Tytuły: A - Z
Tytuły: Z - A
Data - najpierw starsze
Data - najpierw nowsze
Filename Ascending
Filename Descending
Rating Count Ascending
Rating Count Descending
Rating Ascending
Rating Descending
Downloads Ascending
Downloads Descending
Pokaż ilość
5
10
15
20
50
100
Wszystko
Powered by
Phoca Download
DMC Firewall
is developed by
Dean Marshall Consultancy Ltd